Städtebauliche Studie Lorsch
Städtebauliche Studien „Lagerfeld West“ und „Südlich der Friedensstraße“
Standort Lorsch
Bauherrschaft öffentlich
Leistungsphasen 1 – 2
Planung 2022
Größe 4,8 ha | 5,8 ha
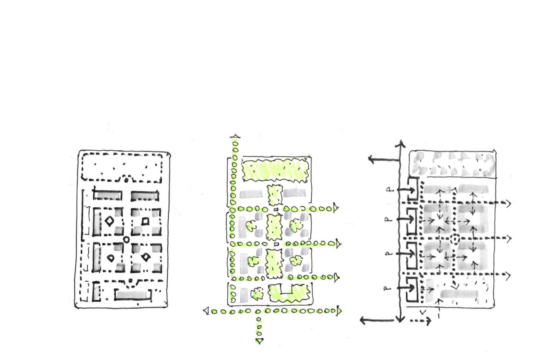
Wie in anderen Teilen der Metropolregion Rhein-Neckar bzw. Bergstraße besteht auch im Stadtgebiet Lorsch seit einiger Zeit erhöhter Bedarf und vermehrte Nachfrage nach Wohnraum unterschiedlicher Form und Größe. Bedarf besteht im Bereich Wohnen sowohl im Einfamilienhaus als auch bezüglich des Geschosswohnungsbaus.
Diese Ausgangslage hat die Stadt Lorsch zu Überlegungen veranlasst, im Rahmen bestehender Entwicklungsplanungen neue Baugebiete auszuweisen, um den langfristigen Bedarf jeweils abdecken zu können.
Hierfür wurden – jeweils im Randbereich – die Gebiete „Lagerfeld West“ westlich der Kernstadt und „Südlich der Friedensstraße“ östlich der Kernstadt untersucht.
Für die vorgenannten Gebiete wurde jeweils eine Machbarkeitsstudie bzw. ein städtebauliches Konzept entwickelt, in der in unterschiedlichen Maßstäben die baulichen, räumlichen, verkehrlichen und umweltrelevanten Belange darlegt wurden.
Die Konzepte dienen zur Entscheidungsfindung für die weitere Entwicklung und ggf. als Vorlage für die zu erstellende Bauleitplanung.
Ziel ist die Ausweisung eines neuen Baugebietes in mindestens 2 Varianten für Wohnhäuser zum eigenen Planen und Bauen durch private Bauherrschaft.
Die Stadt Lorsch wird voraussichtlich die Flächen erwerben, entwickeln und verkaufen, ggf. durch die Entwicklungsgesellschaft Lorsch GmbH. Baugrundstücke sind mit ca. 380 – 450 qm vorzusehen. Bauformen als freistehendes Einfamilien- oder Doppelhaus bzw. in Anteilen als Reihenhaus mit jeweils 2 Vollgeschossen zuzüglich Dach- bzw. Staffelgeschoss. Es werden insgesamt ca. 150 -175 Wohneinheiten angestrebt.




